Healthcare Planning. MRI-Systems

Dieses Projekt ist ein Beispiel meiner Tätigkeit bei Philips Healthcare, wo ich während mehrerer Jahre über 100 Projekte dieser Art erfolgreich umsetzen konnte – vor allem für den britischen, europäischen und skandinavischen Markt, in einzelnen Fällen auch für den russischen und türkischen Markt.

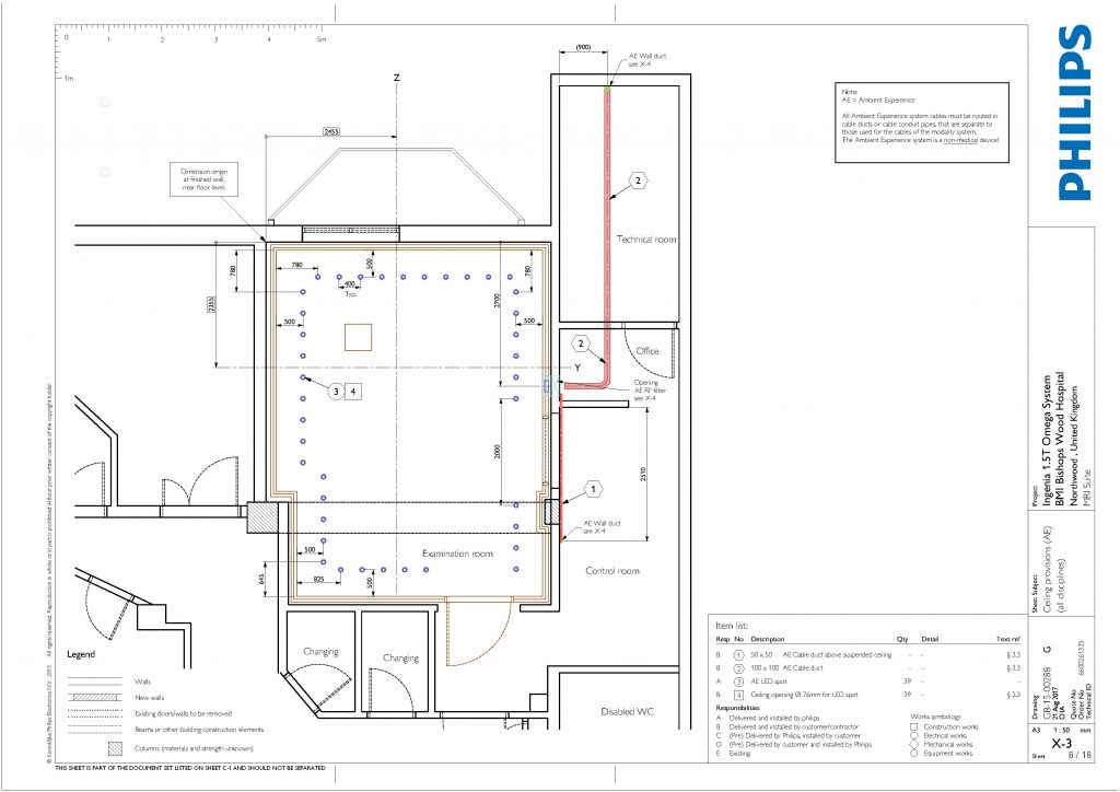
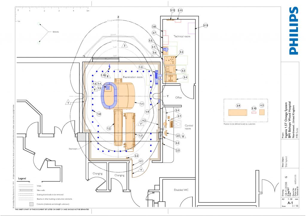
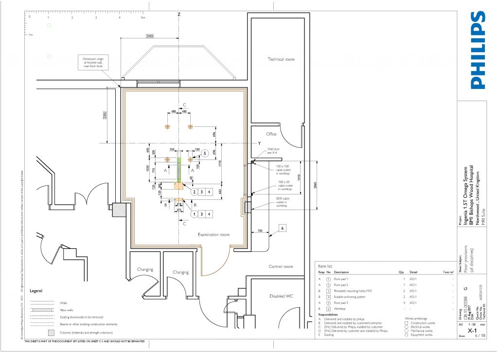
Die Aufgabe umfasste die technische und räumliche Planung einer Magnetresonanztomographie-Einheit (MRI) des Typs Ingenia 1.5T Omega System im BMI Bishops Wood Hospital in Northwood (Vereinigtes Königreich).

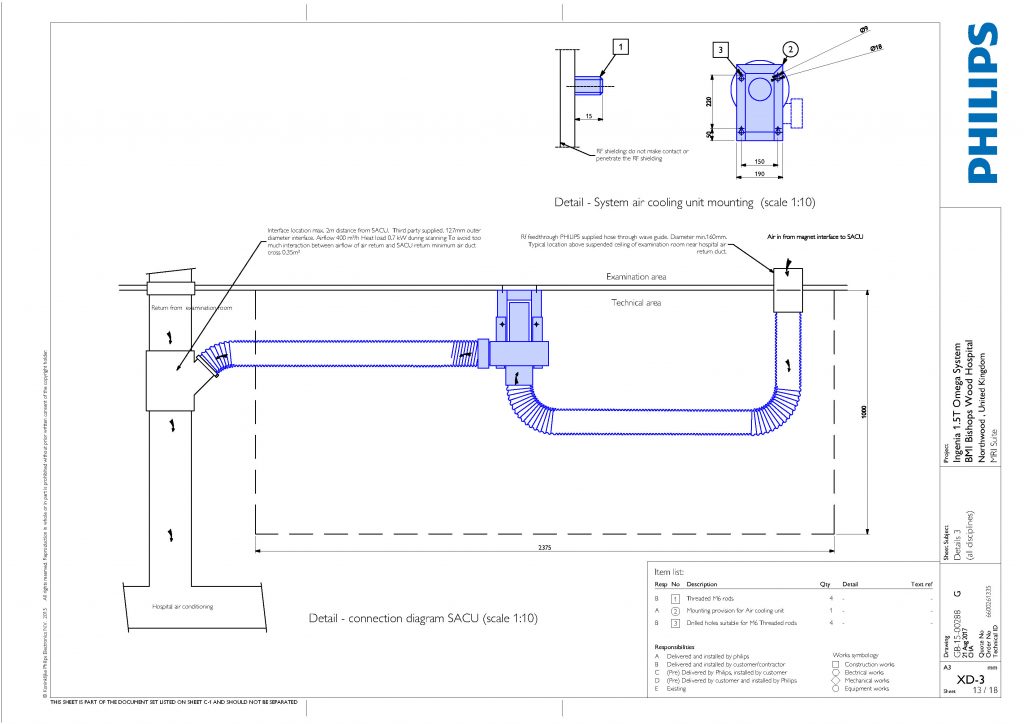
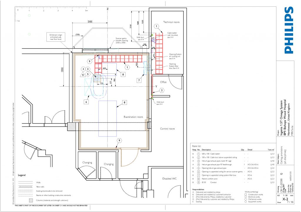
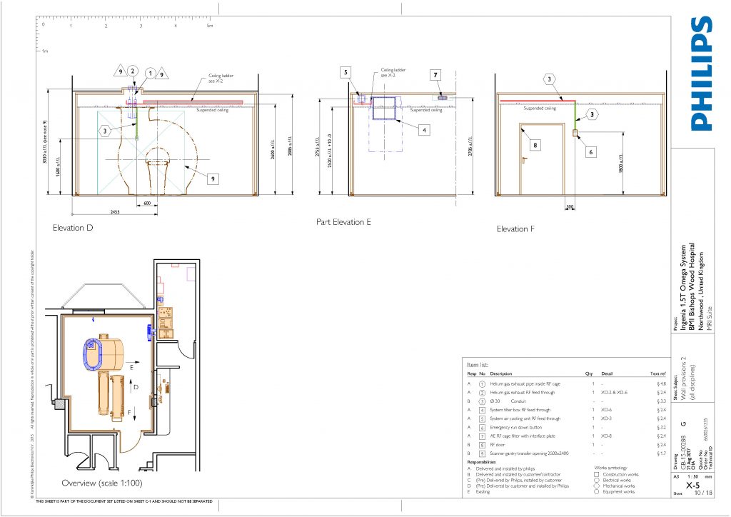
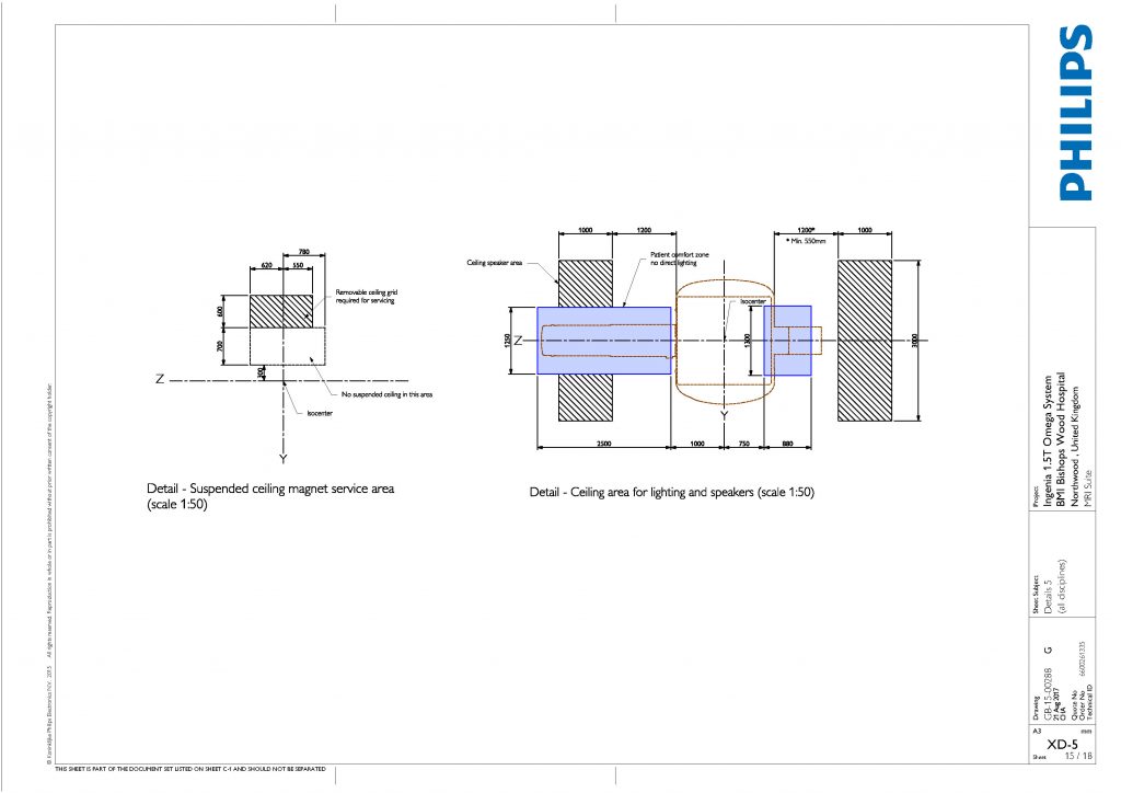
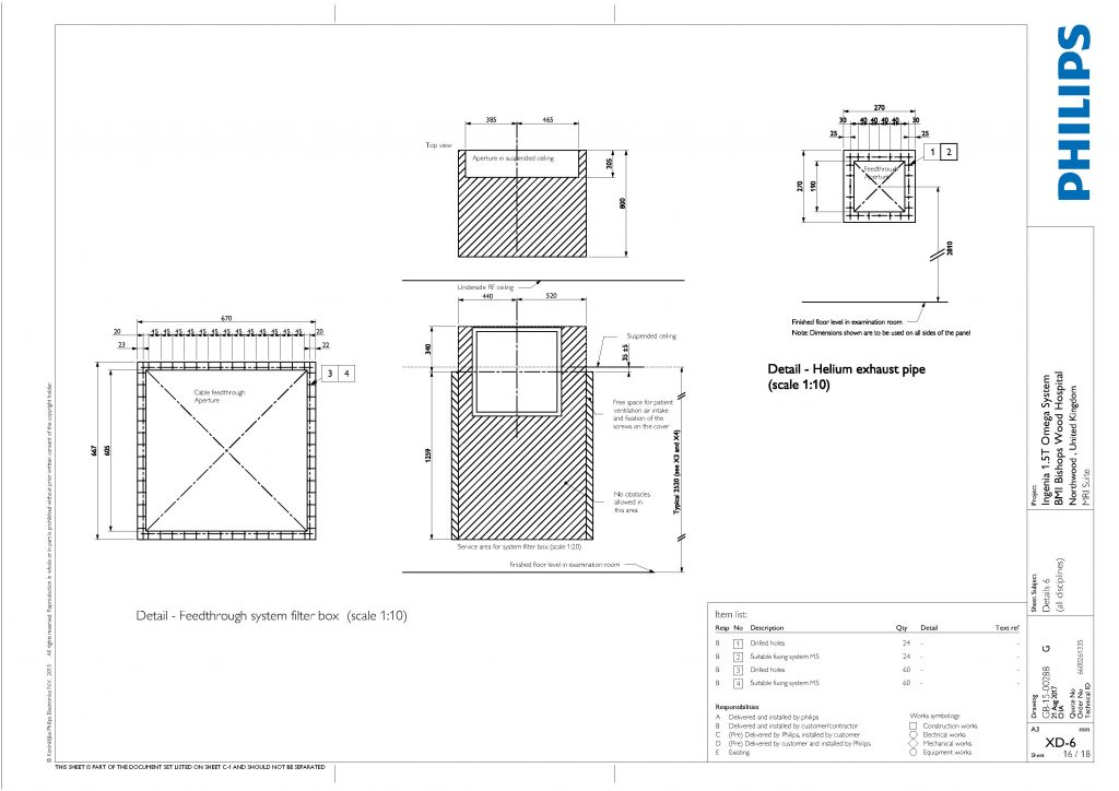
Im Mittelpunkt stand die bauliche Integration des Magnetraums, einschließlich elektromagnetischer Abschirmung (RF Cage)Helium-Ableitung (Quench-Leitung)Kühlungs- und Belüftungssysteme sowie Sicherheits- und Wartungsanforderungen.

Besondere Sorgfalt galt der räumlichen Organisation der Untersuchungs-, Technik- und Kontrollräume sowie der Koordination zwischen baulichen, mechanischen, elektrischen und sicherheitstechnischen Disziplinen.

Die Planung erfolgte in enger Abstimmung mit lokalen Architekten, Ingenieuren und Krankenhausbetreibern, um eine präzise, sichere und wartungsfreundliche Installation zu gewährleisten.

Dieses Projekt verdeutlicht die Verknüpfung von technischer Präzision und architektonischem Denken – insbesondere im Spannungsfeld zwischen Technologie, Raum und medizinischer Nutzung.

Projekt: Ingenia 1.5T Omega System
Ort: BMI Bishops Wood Hospital, Northwood, Vereinigtes Königreich
Jahr: 2017
Auftraggeber: Philips Healthcare
Rolle: Technische Planung und Koordination
Leistungen: Layoutplanung, elektromagnetische Abschirmung (RF Cage), Quench-System, Installationskoordination, Raumorganisation, Sicherheit und Kühlungssysteme