Dieses Projekt ist ein Beispiel meiner Tätigkeit bei Philips Healthcare, wo ich während mehrerer Jahre über 100 Projekte dieser Art erfolgreich umsetzen konnte – vor allem für den britischen, europäischen und skandinavischen Markt, in einzelnen Fällen auch für den russischen und türkischen Markt.
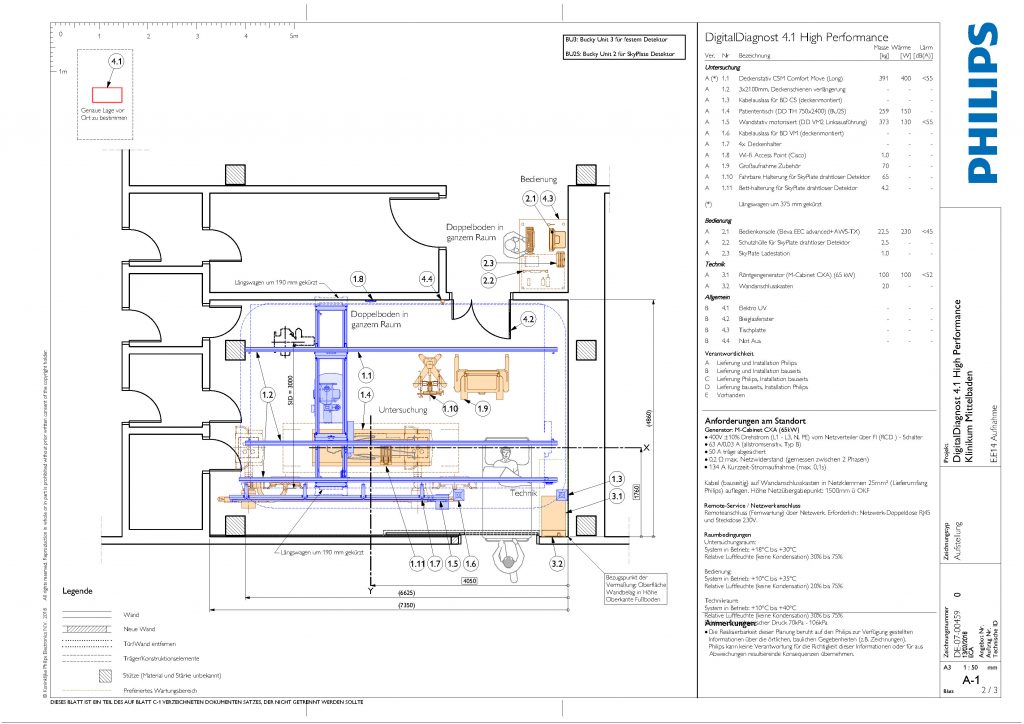
Es zeigt die technische und räumliche Planung einer radiologischen Untersuchungseinheit im Klinikum Mittelbaden, mit dem Ziel, komplexe Medizintechnik – in diesem Fall das System DigitalDiagnost 4.1 High Performance – präzise in bestehende Krankenhausstrukturen zu integrieren.
Die Planung berücksichtigte bauliche, sicherheitstechnische und ergonomische Vorgaben und erforderte eine enge Abstimmung mit verschiedenen Fachdisziplinen.
Besondere Schwerpunkte lagen auf der räumlichen Organisation, der Koordination von Installationen und Möblierung, der Lüftungsführung sowie der Berechnung von Strahlenschutzbereichen.
Auch wenn dieses Projekt stärker technisch geprägt ist, verdeutlicht es zentrale architektonische Kompetenzen: das Verständnis von Raum, Technik und menschlichen Abläufen sowie die Fähigkeit, interdisziplinäre Standards in ein kohärentes räumliches Konzept zu übersetzen.
Projekt: DigitalDiagnost 4.1 High Performance
Ort: Klinikum Mittelbaden, Deutschland
Jahr: 2018
Auftraggeber: Philips Healthcare
Rolle: Technische Planung und räumliche Koordination
Leistungen: Layoutplanung, Geräteintegration, Installationskoordination, Strahlenschutz, Klimabedingungen



